Добро пожаловать на http://vipplan.ru

Випплан Каспийск - это тысячи проектов домов в нашем каталоге!

Вы всегда сможете найти для себя проект дома вашей мечты! Даже если этого не случилось, мы готовы в любую минуту предложить проект индивидуального дома.

Забыли пароль?
Вы еще не регистрировались?

Перейдите по ссылке ниже на страницу регистрации.

Регистрация...

Внимание!!!

В проектную документацию могут быть внесены изменения любой сложности, в соответствии в Вашими пожеланиями!

Полезные статьи

Печи и камины в частном доме

Спросите любого человека, и вы поймете, что каждый человек мечтает иметь свой собственный дом, который он сможет обустроить так, как ему хочется. Этот дом будет полон уюта, тепла, света и комфорта, а главное, что, придя с работы, человек сможет запросто отдохнуть у своего очага.  Нет никакой альтернативы перед выбором печи или камина. Эти две вещи не сможет  заменить ни искусственный свет, ни солнечное освещение. Камин и печь, с древности, считаются предметом роскоши. Ни один большой дом не может обойтись без них, поскольку если удастся сесть и посидеть перед этим местом, то долго нельзя будет...

Советы по проектированию дома

Представляем Вашему вниманию несколько советов по проектированию дома. Все что касается выбора участка, размещению дома на участке, подбора проекта на строительство дома, советы по выбору технологии строительства и материалов и т.д....

Проекты домов и коттеджей > Каталог проектов домов > Проект одноэтажного кирпичного дома Vg166

Проект одноэтажного кирпичного дома Vg166

Проект одноэтажного кирпичного дома
Зарегистрируйтесь

Проект № Vg166


Техническое описание
Общая площадь: 80 м2
Высота здания: 7 м
Размеры дома: 11м×10м
Кол-во комнат: 3
Цокольный этаж: нет
Гараж: нет
Мансарда: нет

Kонструкция
Фундамент: Ленточный монолитный ж/б ("щелевой"- стена в грунте)
Отделка дома: Облицовочный кирпич.Частично по фасаду отделка камнем
Перекрытия: По деревянным балкам с использованием теплошумоизоляционных материалов
Материал стен: Забутовочный кирпич с отделкой облицовочным кирпичом

Архитектурный раздел
Конструктивный раздел
АР+КР - 44 000 (Со скидкой 20%)


Проект индивидуального одноэтажного жилого дома с размерами 10,86 x 9,96 м. 
Наружная отделка здания -облицовочный кирпич.Частично по фасаду отделка камнем. 
Обрамление оконных и дверных проемов - камень.
Цоколь - камень.
Фундамент – ленточный монолитный ж/б ("щелевой"- стена в грунте).
Наружные стены запроектированы из забутовочного кирпича с отделкой облицовочным кирпичом.
Внутренние стены и перегородки - из забутовочного кирпича.
Перемычки - монолитные и сварные из профиля проката.
Перекрытие чердачное - по деревянным балкам с использованием теплошумоизоляционных материалов. 
Пол первого этажа - пол по грунту.
Крыша -многоскатная. Материал кровли - металлочерепица. 
Окна - металлопластиковые, выполненные по индивидуальному заказу. 
 
 Технико-экономические показатели
 
Общая площадь помещений - 80,48 м2
Этажность - 1
Высота здания - 7 м от отметки ур. земли до конька
 

Генплан застройки участка / Паспорт проекта 7000 руб / 10000 руб
Инженерный раздел (полный) 50000 руб
Смета на строительство 25000 руб
Теплотехнический расчет материалов стен Бесплатно
Стоимость проекта со незначительнми изменениями 53000 руб
Стоимость проекта со средними изменениями* 59000 руб
Стоимость проекта со значительными изменениями** 60600 руб

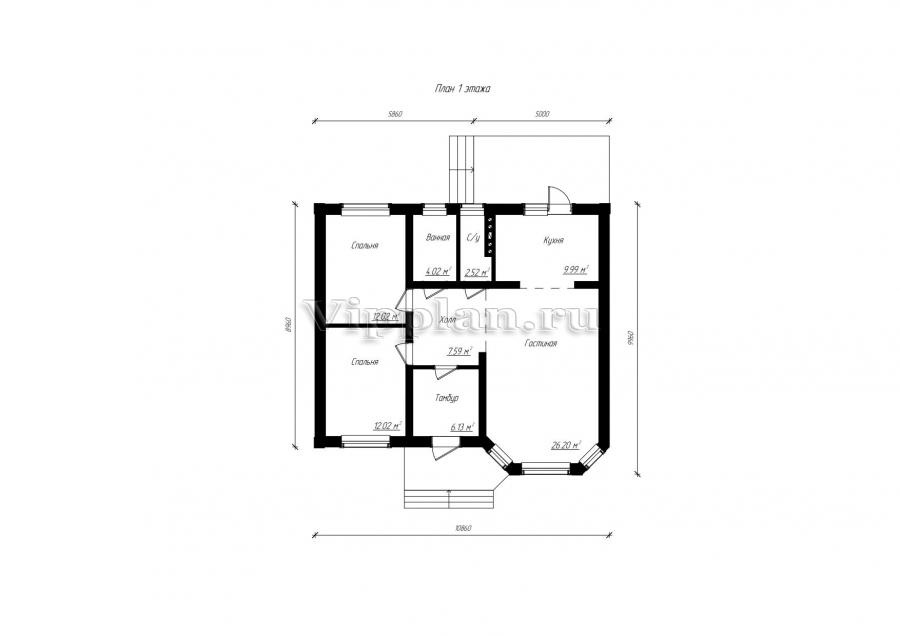
План первого этажа


Тамбур - 6,13 м2
Холл - 7,59 м2
Гостиная - 26,20 м2
Спальня - 12,02 м2
Спальня - 12,02 м2
Кухня - 9,99 м2
Ванная - 4,02 м2
С/у - 2,52 м2
Проект одноэтажного кирпичного дома Проект одноэтажного кирпичного дома Проект одноэтажного кирпичного дома Проект одноэтажного кирпичного дома
Внесение изменений и привязка к участку строительства

В любой из проектов от компании VIPplan - Каспийск по вашему желанию могут быть внесены изменения в материалы стен, материалы наружной отделки дома, а также будет произведена адаптация проекта под конкретный регион строительства (с учетом грунтов региона, геологических особенностей вашего участка и местных климатических условий) - БЕСПЛАТНО !!! (кроме проектов со скидкой и проектов наших партнеров).

Любой из проектов, размещенных на сайте kaspiysk.vipplan.ru мы можем выполнить из требуемых вам строительных материалов: ячеистый бетон (газобетон, пеноблок), керамоблок, кирпич, шлакоблок, бетонный блок, дерево (брус, клееный брус), каркасная технология (деревянный каркас, металлокаркас (ЛСТК)).

Фасад дома и его наружную отделку так же возможно выполнить с применением различных облицовочных материалов: структурной штукатурки, (с утеплителем и без), сайдингом (пластиковый или металлосайдинг), фиброплитами, кирпича.

 
6 Избранные
проекты

Доставка проектов по России: Москва (Московская область), Санкт-Петербург (Ленинградская область), Краснодар, Ростов-на-Дону, Ставрополь, Сочи, Волгоград, Новосибирск, Белгород, Брянск, Воронеж, Саратов, Хабаровск, Астрахань, Нальчик, Владикавказ, Екатеринбург, Тюмень, Самара, Нижний Новгород, Казань, Пермь, Уфа, Челябинск, Красноярск, Ханты-Мансийск, Иркутск, Курган, Оренбург, Омск, Томск, Барнаул, Новокузнецк, Кемерово, Абакан, Чита, Якутск, Южно-Сахалинск, Петропавловск-Камчатский и страны ближнего зарубежья: Белоруссия, Украина, Казахстан